443WR Image 1 443WR Image 2 443WR Image 3 443WR Interior Elevations 443WR Site Plan 443WR Structural Plan 443WR Structural Detail 1 443WR Structural Detail 2

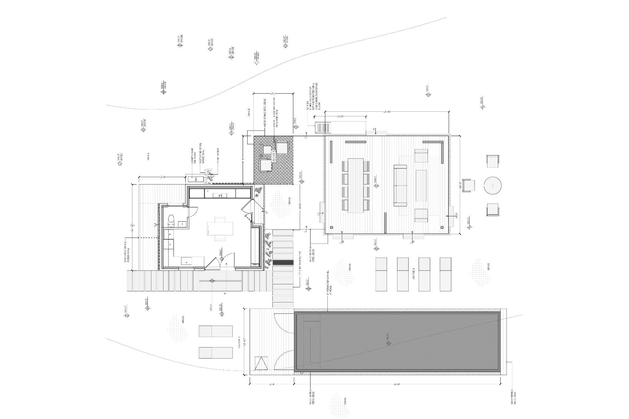
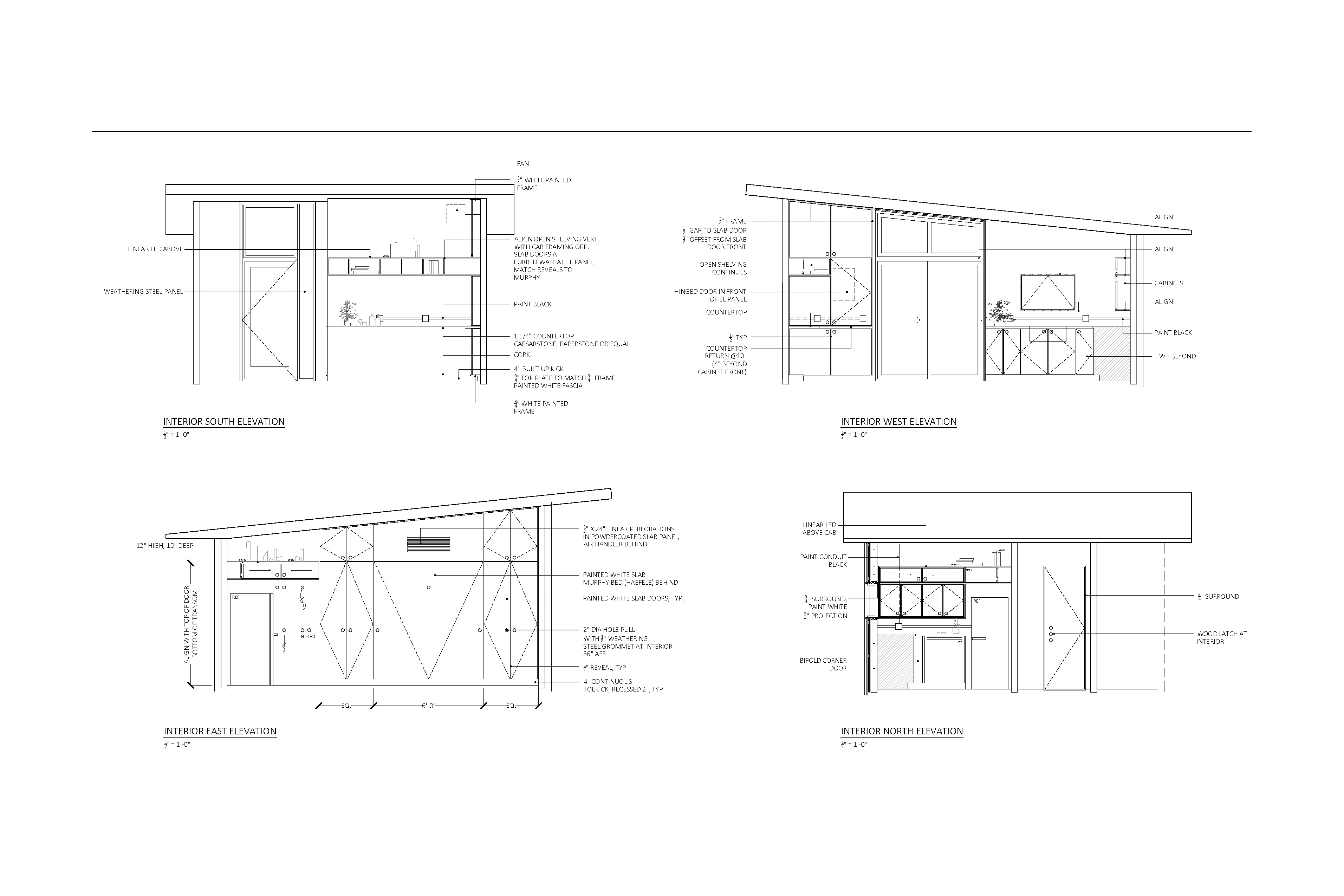
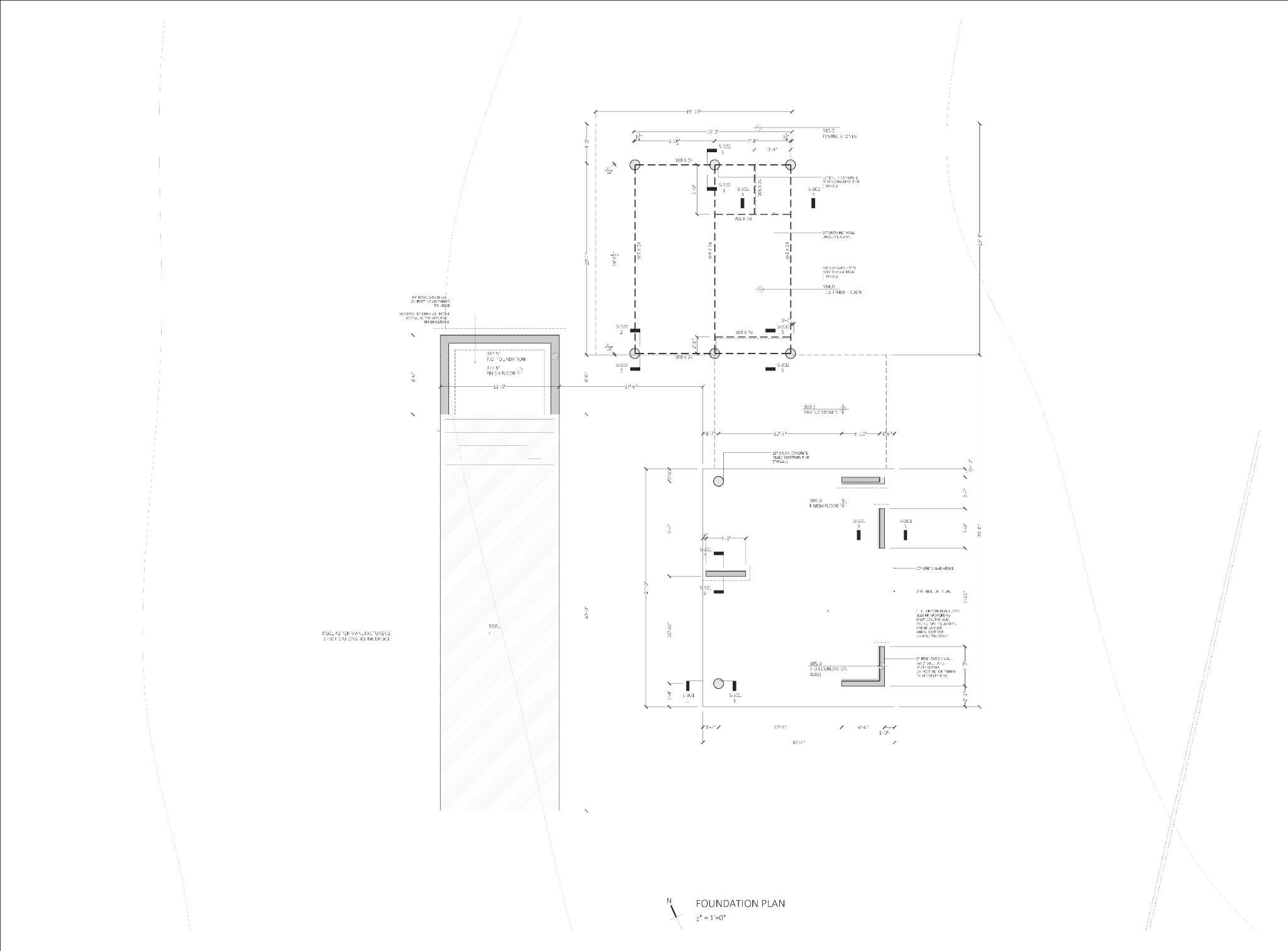
Constructed with cross-laminated timber (CLT) panels and glulam framing, 443WR is a rapid-assembly prototype organized around a pool house and a covered porch. A Modpool — a prefabricated swimming pool fabricated from a modified shipping container — anchors the exterior program. Integrated cabinetry, concealed mechanical systems, and lightweight detailing emphasize modularity, efficient construction, and a continuous dialogue between interior and exterior spaces.

Collaboration with Structural Engineer David Pisacrita and Derek Janukajtis Custom Woodworking