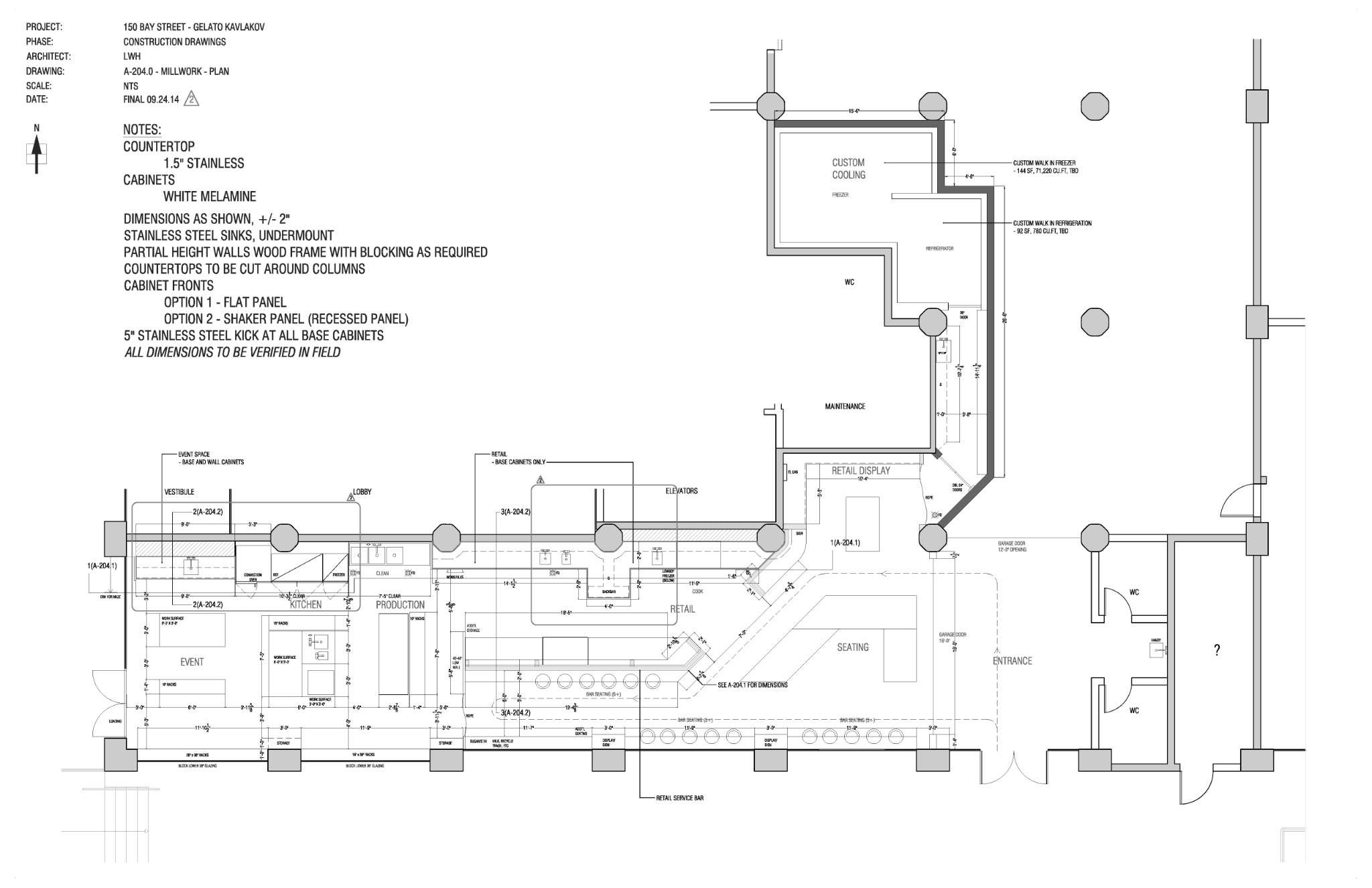
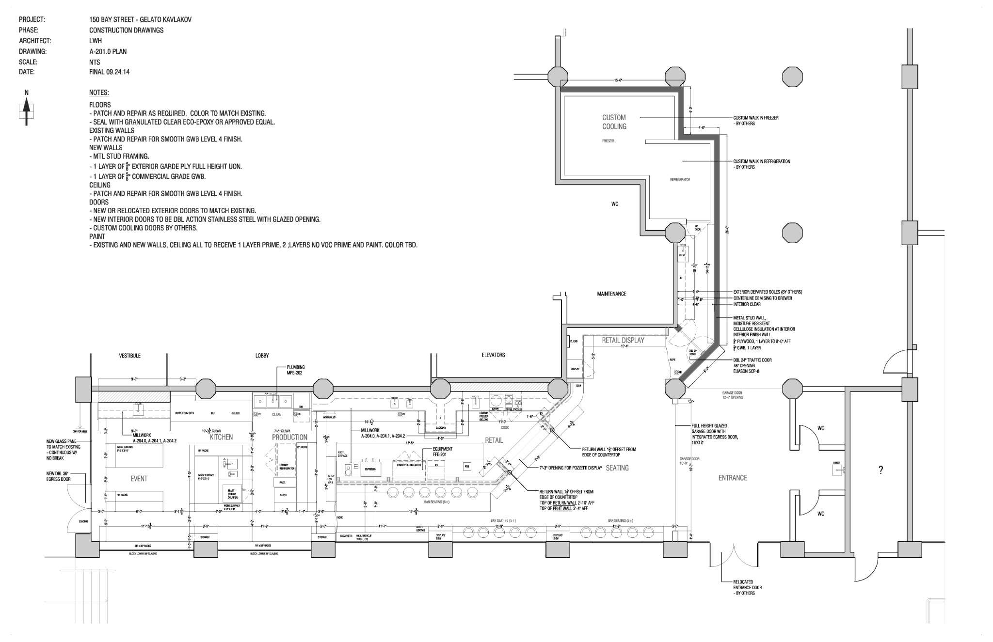
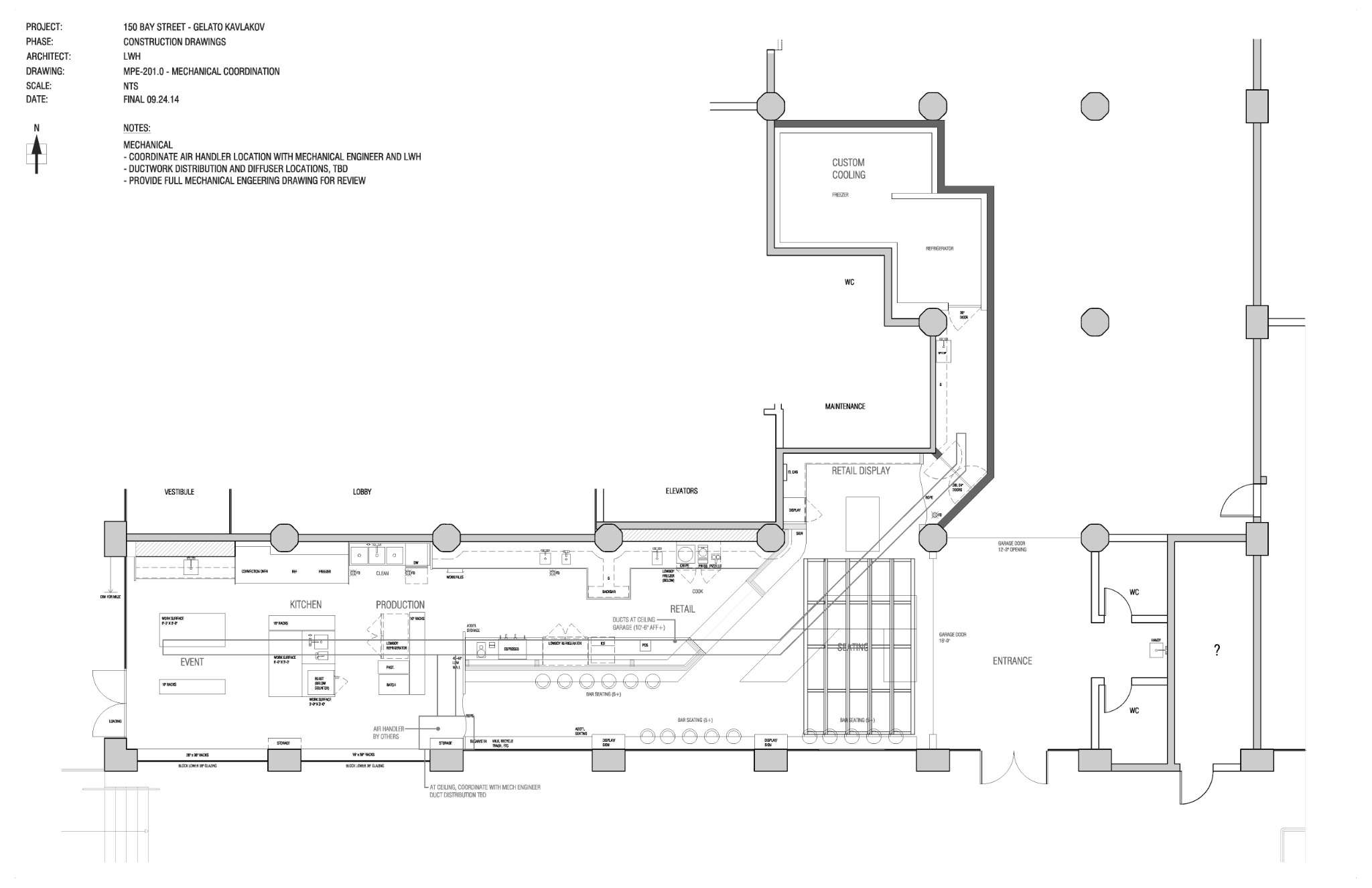
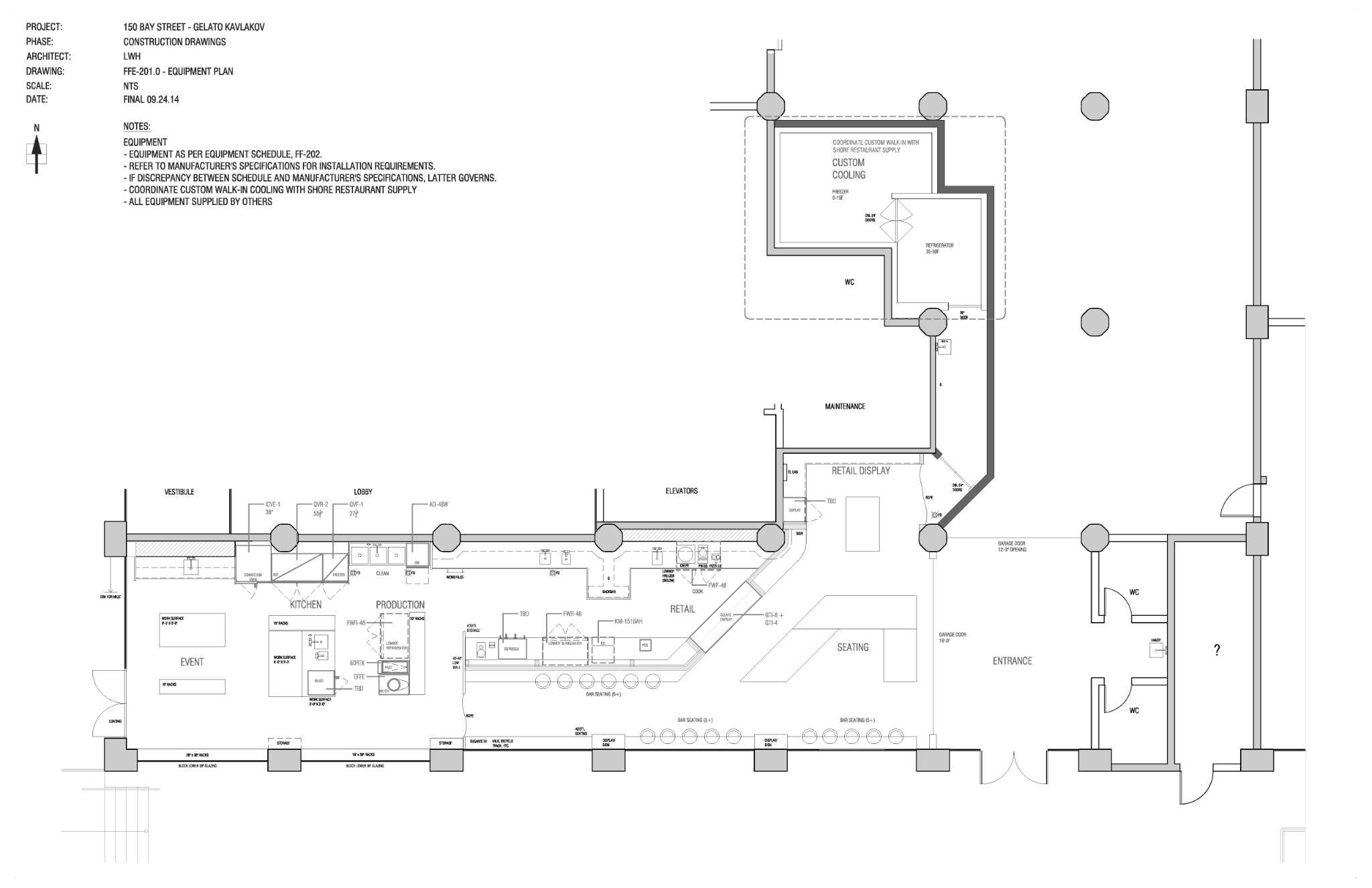
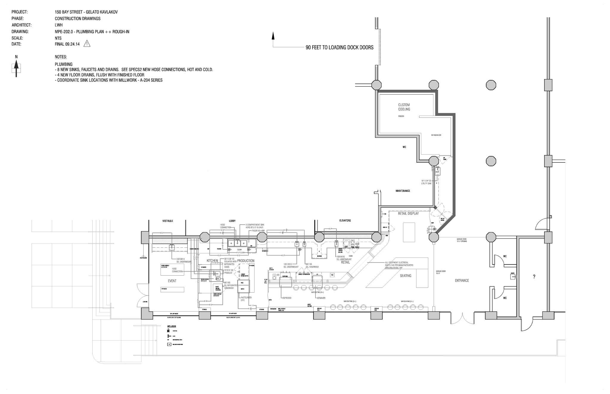
Bucket & Bay Image 1 Bucket & Bay Image 2 Bucket & Bay Image 3 Bucket & Bay Image 4 Arch Plan Millwork Plan Millwork Detail Plan and Elevation Millwork Section Equipment Plan Mechanical Plan Plumbing Plan

Bucket & Bay is a hybrid space: gelato laboratory, café, manufacturing and production facility. Project design and construction leadership from concept through commissioning, including branding, architectural design, procurement, and construction management. A future-proofed, flexible and adaptive multi-purpose environment.

Custom Titan LED lighting, millwork and manufacturing work stations.

Suspended wood ceiling frame that for equipment anchorage, signage, and lighting. Tables and benches serve multiple roles of seating, working and crafting.

Colors and finishes are inspired by personal histories and material specificity: Spanish fruit, fresh milk, pastries, wrought iron, and handcrafted wood.