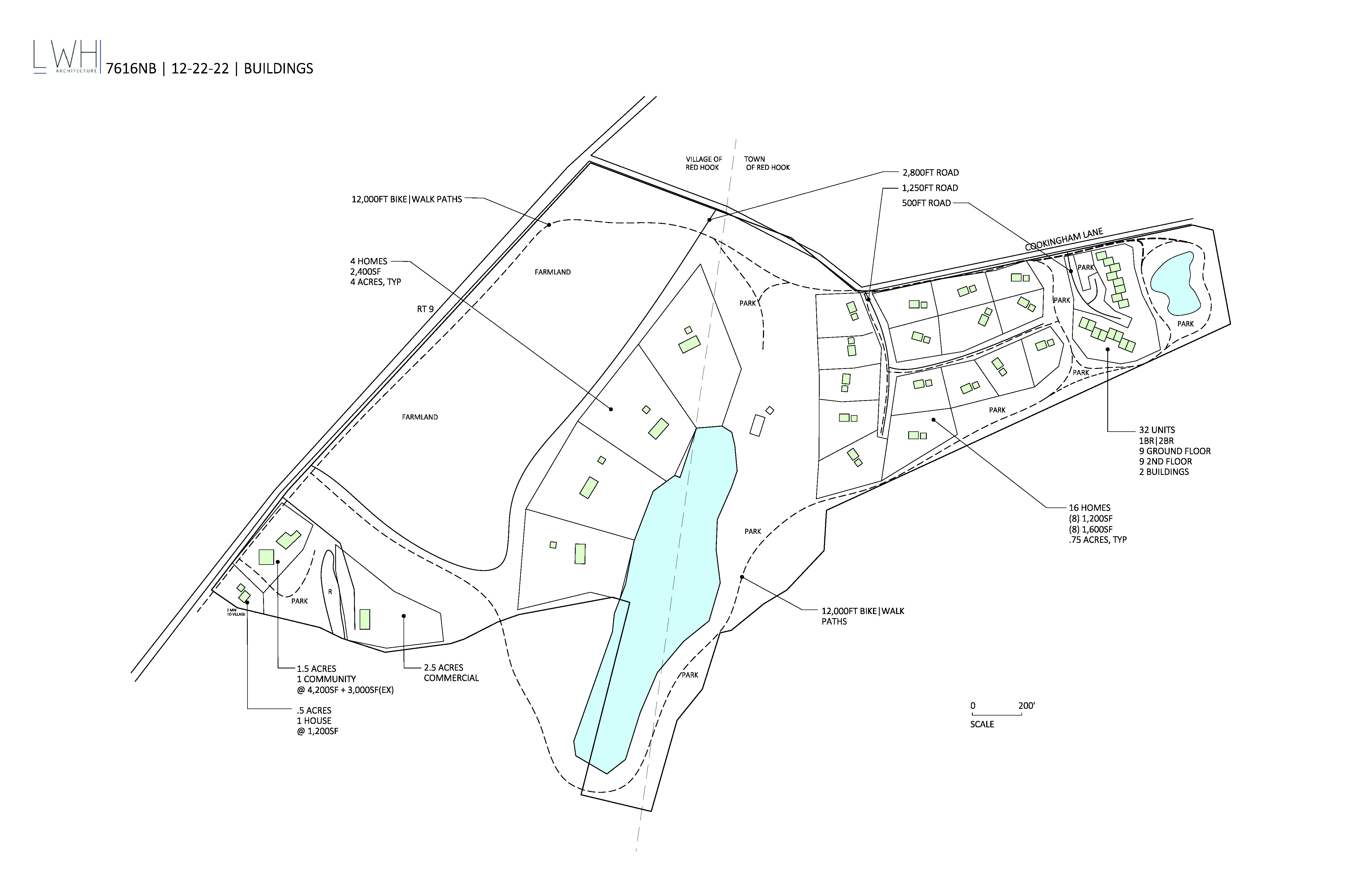
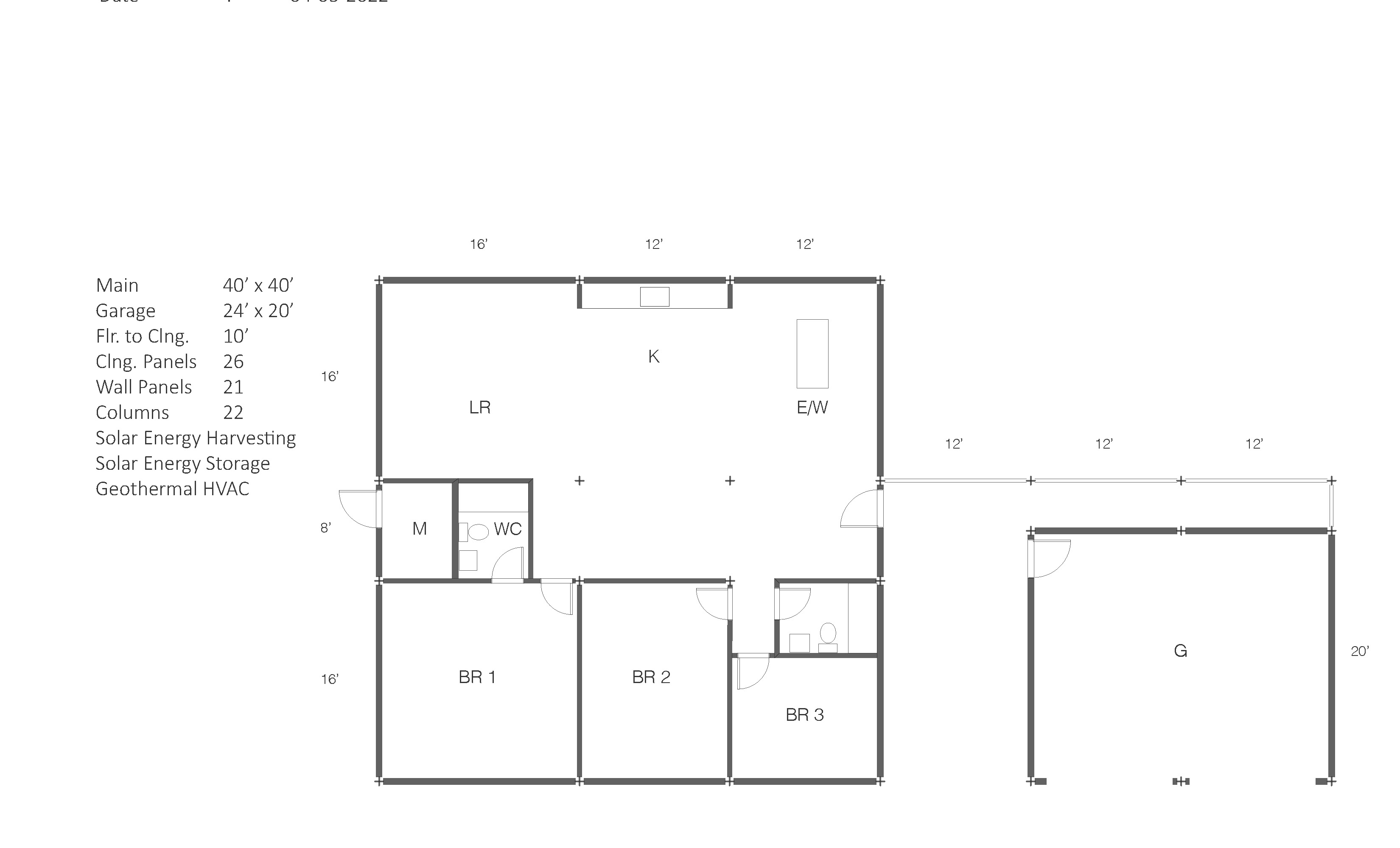
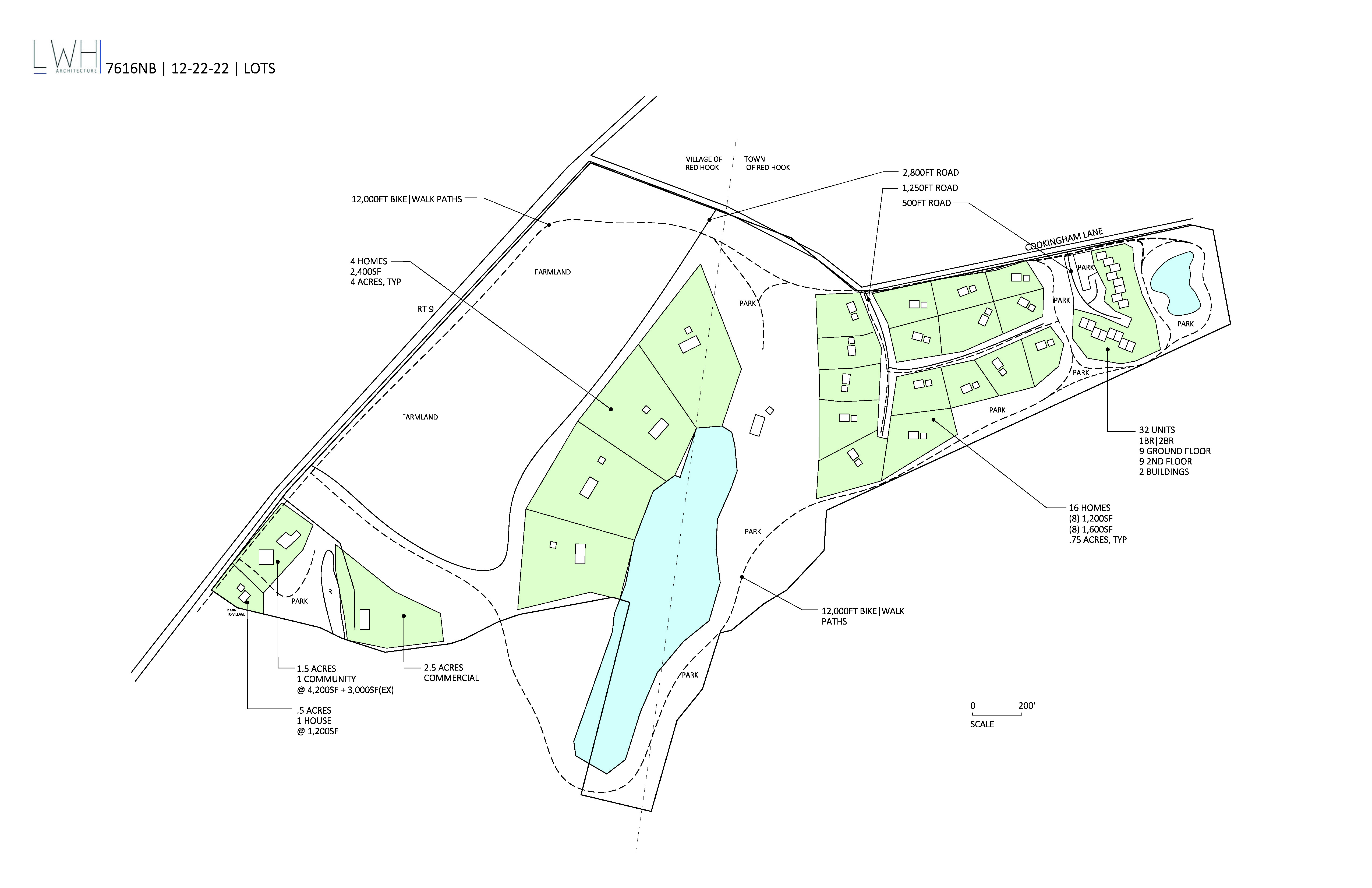
Site Plan Floor Plan Survey Preserved Land and Parks Green Space Lots Buildings Download Business Plan - Houses #1